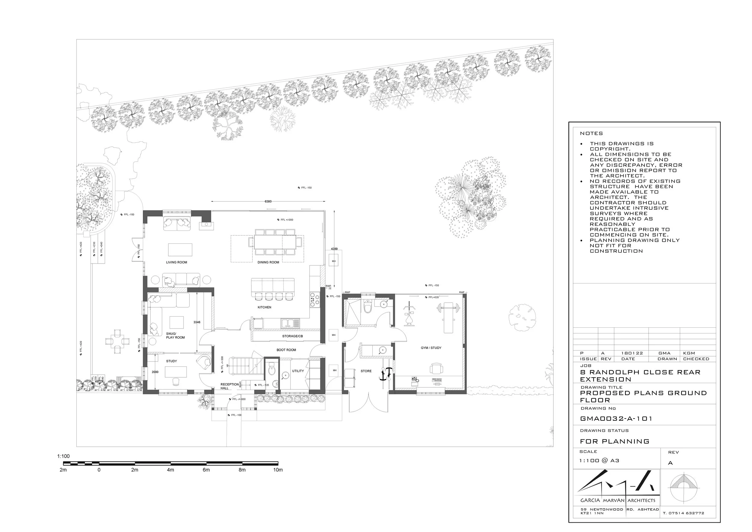
House Extension in Stoke D’Abernon
The brief was to create a single storey rear extension, providing an open-plan layout, and to modernise the 1960’s house. Featured here are initial concept designs and an extract of the planning and technical drawing package.

