Peaslake House Extension
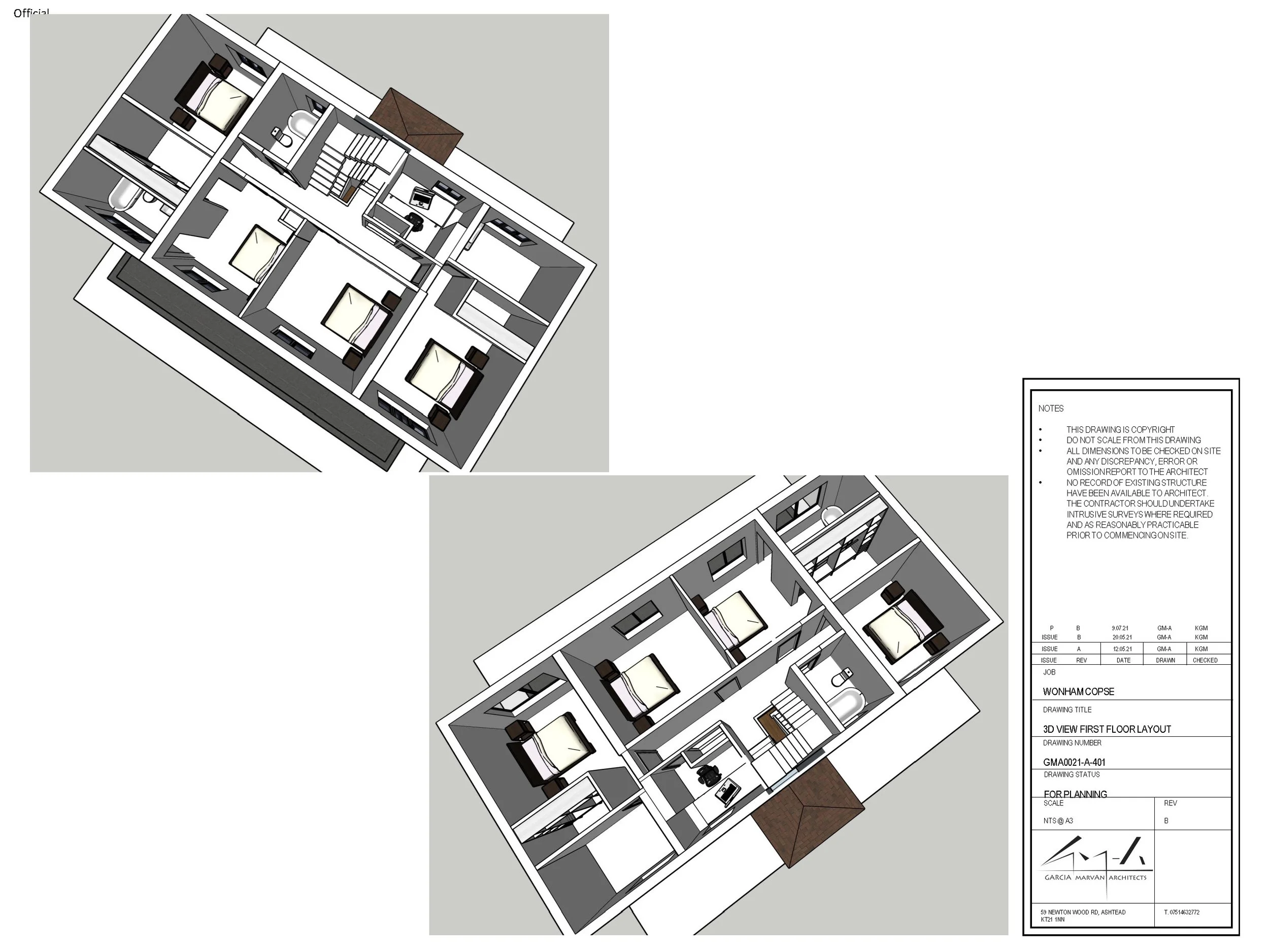
The brief was to increase the number of bedrooms and bathrooms in the house; a challenge since the house lies in Green Belt. Featured here is an extract of the planning drawings and technical detail drawings.
The brief was to increase the number of bedrooms and bathrooms in the house; a challenge since the house lies in Green Belt. Featured here is an extract of the planning drawings and technical detail drawings.